Skip to content
Proiect Benzinarie
Concept / Fezabilitate / Arhitectura / Proiectare completa / Structura / Instalatii / Tehnologie / Project management — Contact: 0728 554 112 / george@a7arhitectura.com
Toggle Sidebar
22/09/2016
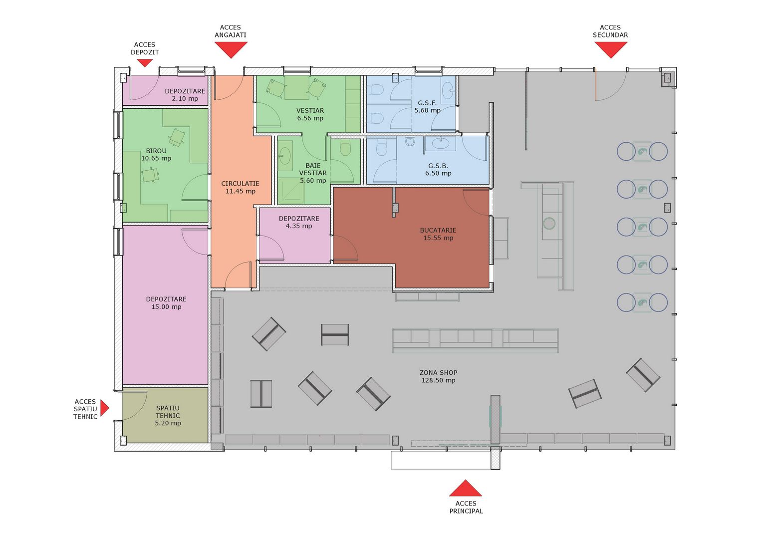
proiectbenzinarie-com-socar-concept-1-012
Leave a comment
Cancel reply
Δ
Post navigation
←
statie socar concept 1
Menu
proiect
Statie Filiasi
Statie Corabia
parcare securizata
Statie Romanescu
Statie Caracal
statie Rompetrol Caracal 7
statie Rompetrol R6
statie Rompetrol R4
statie Rompetrol Caracal 2
statie Rompetrol R3
statie Rompetrol Caracal
statie Forte Gas
statie Petrosani C2
statie C3
statie C2
statie C1
statie Maramures M
statie AZ C
statie Maramures
statie Bistrita 2
statie Bistrita 1
statie Rompetrol R. 2.
statie Rompetrol R. 1.
statie Rompetrol C.
statie rompetrol P.
statie refill
statie nord
statie claus
statie omv arad
spatiu fumatori omv
petrom voluntari 2005
petrom blaj 2005
petrom 19 craiova 2005
petrom campeni 2005
concept
statie MYS Energy
Statie Galati MYS
Truck Stop Cinea – Concept 4
Truck Stop Cinea – Concept 2
statie Corabia C1
statie Caracal C4
statie Romanescu C2.1
statie Caracal C3
statie Petrosani C1
statie Romanescu C2
statie Forte Gas 1
statie Forte Gas 2
statie azalis concept
statie azalis concept 2
statie claus concept
statie socar concept 1
statie socar concept 2
statie socar concept 3
amenajare
interior Romanescu
interior Caracal
interior Corabia C1
interior Caracal C7
interior Caracal C4
statie C3 interior
statie C1 interior
statie Bistrita interior
concept cafenea HEI 1
concept cafenea HEI 2
mobilier gondole R
mobilier exterior R
mobilier receptie socar
mobilier gondole socar
statie azalis interior
statie socar interior
statie omv interior
mobilier gondole v1
mobilier gondole v2
wash
carwash Romanescu
carwash Craiova R6
carwash Caracal C4
carwash Romanescu C2
carwash Severinului C1
carwash Severinului C2
tehnologie
instalatie tehnologie T1
rezervoare tip 1
rezervoare tip 2
terminal plata
ECO
Solar Car Port 1
Solar Car Port 2
Solar Car Port 3
semnalistica
totem OR
totem claus
totem Refill
totem Azalis
semnalistica Nord
contact
A7 Arhitectura
Office Sapte Studio
A7 Construct
A7 Mobilier
George Tatulea
Roxana Nicoleta
Comment
Subscribe
Subscribed
Proiect Benzinarie
Sign me up
Already have a WordPress.com account?
Log in now.
Proiect Benzinarie
Subscribe
Subscribed
Sign up
Log in
Copy shortlink
Report this content
View post in Reader
Manage subscriptions
Collapse this bar